ตำแหน่งที่ตั้ง
-
บ้านเลขที่ 44/53 หมู่บ้าน ปัญญาทิพย์
ข้อมูลที่อยู่อาศัย
-
22783
-
0 ไร่, 0 งาน, 22.40 ตร.ว.
-
0 ตร.ม.
รายละเอียดการติดต่อ
-
ฝ่ายขาย และส่งเสริมกิจกรรมการขาย
-
หน่วยงานเจ้าของทรัพย์
-
บริษัท บริหารสินทรัพย์สุขุมวิท จำกัด
-
โทร: 02-686-1888
โทรสาร: 02-617-8227
LINE ID: @samline
รายละเอียดทรัพย์สิน
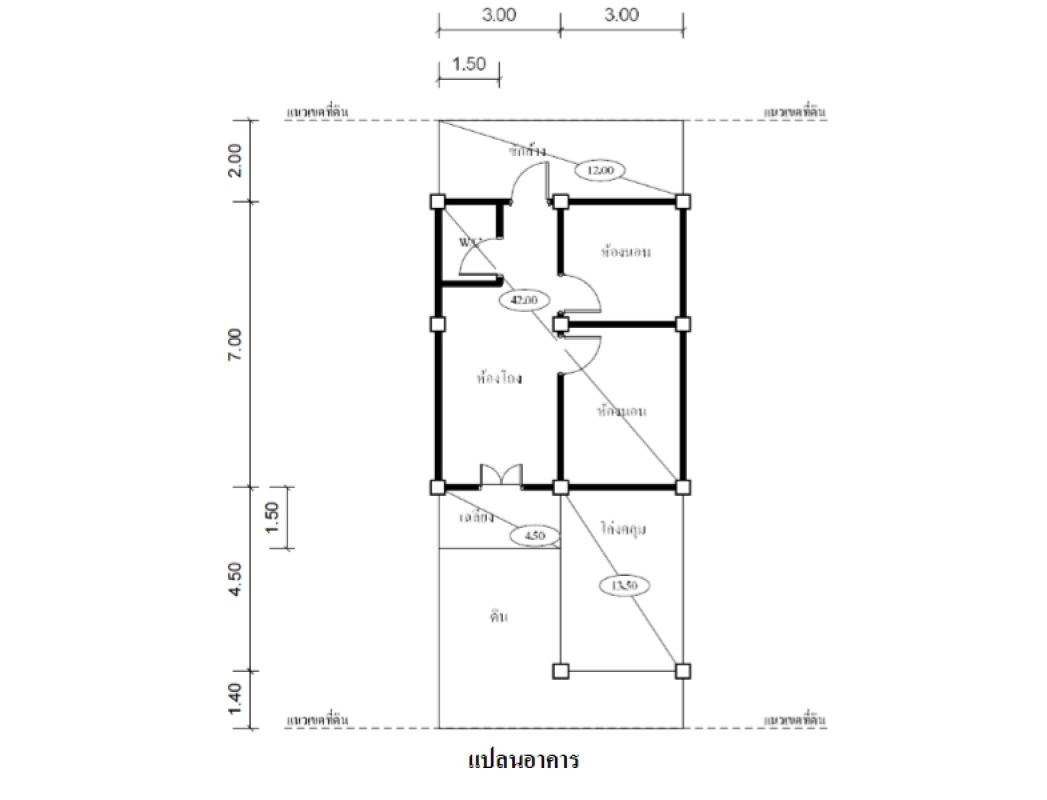
ที่ดินเป็นรูปสี่เหลี่ยมผืนผ้า ขนาดแปลงที่ดินด้านทิศเหนือติดถนน กว้างประมาณ 6 ม. ลึกประมาณ 14.9 ม. บสส. รับโอนกรรมสิทธิ์สิ่งปลูกสร้างระบุเป็นทาวน์เฮ้าส์ชั้นเดียวและส่วนโล่งหลังคาคลุมด้านหน้า เลขที่ 44/53 ถนนผ่านหน้าทรัพย์สิน ได้แก่ ถนนหมู่บ้านปัญญาทิพย์ เป็นทางในโครงการจัดสรรที่ได้รับอนุญาตแล้ว ผิวจราจร คสล. กว้างประมาณ 6 ม. เขตทางกว้างประมาณ 8 ม.
ข้อมูลที่ปรากฏในเว็บไซต์นี้ ศูนย์ข้อมูลฯ ได้รับมาจากแหล่งข้อมูลที่เชื่อถือได้ โดยได้ตรวจสอบจนมั่นใจในระดับหนึ่งแล้ว แต่ศูนย์ข้อมูลฯ ไม่สามารถยืนยันความถูกต้องหรือความเป็นจริง และไม่อาจรับผิดชอบต่อความเสียหายที่เกิดขึ้นไม่ว่ากรณีใดๆ จากการใช้ข้อมูล ผู้นำข้อมูลไปใช้พึงใช้วิจารณญาณและตรวจสอบตามความเหมาะสม
ศูนย์ข้อมูลฯ ได้ทำการตรวจสอบตำแหน่งที่ตั้งทรัพย์บนแผนที่ที่ปรากฎอยู่บนเว็บไซต์ โดยอาศัยข้อมูลจากแหล่งข้อมูลต่างๆ ที่เชื่อถือได้ เพื่อให้ตำแหน่งทรัพย์บนแผนที่ ใช้อ้างอิงท่านไปยังที่ตั้งของทรัพย์นั้นๆ โดยประมาณ ทั้งนี้ศูนย์ข้อมูลฯ ไม่สามารถยืนยันความถูกต้องของตำแหน่งทรัพย์ได้ ดังนั้น ทางศูนย์ข้อมูลฯ ขอสงวนสิทธิ์ไม่รับผิดชอบต่อข้อผิดพลาดทางตำแหน่งทรัพย์ที่เกิดขึ้นบนแผนที่ ผู้นำข้อมูลไปใช้พึงใช้วิจารณญาณและตรวจสอบตามความเหมาะสม
แผนที่
คำนวณค่าผ่อนบ้าน
-
จำนวนดอกเบี้ย:2,231 บาท/เดือน
-
จำนวนเงินต้น:2,369 บาท/เดือน
หมายเหตุ:
การคำนวณเงินงวดคิดจากอัตราดอกเบี้ยที่ท่านระบุบวกร้อยละ 1 เพื่อให้ตัดชำระเป็นเงินต้น และผลลัพธ์จะปัดตัวกลมเป็นหลักร้อยบาท ทั้งนี้ ผลการประเมินจากเครื่องคำนวณสินเชื่อเป็นเพียงการประเมินวงเงินกู้ในเบื้องต้น ส่วนการอนุมัติสินเชื่อสงวนสิทธิ์เป็นไปตามหลักเกณฑ์ของธนาคาร
อัตราดอกเบี้ยสำหรับสินเชื่อบ้าน
หากคุณกำลังมองหาทางเลือกเพื่อขอสินเชื่อบ้านด้วยอัตราที่เหมาะสม คุณสามารถเลือกชมรายละเอียดสินเชื่อจากธนาคารเหล่านี้ และติดต่อทางธนาคารเพื่อขอความช่วยเหลือในการให้คำแนะนำ
สินเชื่อบ้านกรุงศรีเพื่อซื้อที่อยู่อาศัย
- อัตราดอกเบี้ยเฉลี่ย 3 ปีแรก* = 5.050%
- ปีที่ 1 = 4.65% ต่อปี
- ปีที่ 2 = 5.00% ต่อปี
- ปีที่ 3 = 5.50% ต่อปี
สินเชื่อบ้าน ธนาคารกรุงไทย
- อัตราดอกเบี้ยเฉลี่ย 3 ปีแรก* = 3.60%
- ปีที่ 1 = 2.29% ต่อปี
- ปีที่ 2 - ปีที่ 3 = 4.25% ต่อปี
โครงการบ้าน ธอส. สุขสบาย ปี 2568
- อัตราดอกเบี้ยเฉลี่ย 3 ปีแรก* = 5.302%
- ปีที่ 1 - ปีที่ 2 = MRR - 2.00% ต่อปี
- ปีที่ 3 = MRR - 1.00% ต่อปี
